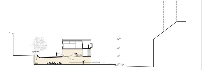
gemeindezentrum mit café. der vorgesehene bauplatz würde das ortszentrum sehr einengen.
das gebäude wird ganz an den rand geschoben - es macht sich schmal, um dem ort raum zu geben. die bürger erhalten ein neues ortszentrum mit einem gebäude, welches sich durch seine fassadengestaltung sehr zum platz öffnet.
| fertig | 2006 (wettbewerb) |
| land | AUT |
| ort | eichgraben |
| grösse | 1.500 m2 |
| auftraggeber | gemeinde eichgraben |
| projektleitung | erwin stättner |
| mitarbeiterInnen | carmen hottiner sigi schmidt |





