städtebaulicher lösungsansatz
der einfache, längliche baukörper entlang der dammstraße führt die maßstäblichkeit der bestehenden gebäudevolumen des campus weiter und fügt sich selbstverständlich ein. durch den abstand zur postgarage lässt der bauteil 3 raum für zukünftige entwicklungen und ermöglicht die bau/gewerberechtliche belichtung.
durch den schlankeren baukörper wird eine entsprechende durchlässigkeit richtung osten zu den personalhäusern sichergestellt und ein angemessener vorplatz geschaffen. das offene und von allen seiten zugänglichen erdgeschoß verzahnt sich mit der umliegenden freiraumgestaltung und lädt zum aufenthalt ein.
identität und atmosphäre
die markante dachform sorgt für ein prägnantes erscheinungsbild und schafft einen besonderen ort mit mehrwert am dach. durch die fassadenlamellen entsteht im zusammenspiel mit dem staffelgeschoß ein poetischer zwischenraum.
kollaboration und austausch
die natürlich belichtete erschließung mitangeschlossener teeküche als begegnungsorterzeugt die gewünschte vernetzunguntereinander. die dachlandschaft dient alsgrünoase und treffpunkt für alle nutzer.
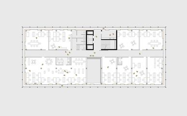
kreativität und agilität
die gebäudestruktur als holzhybridskelettbau erlaubt unterschiedliche büroformen und langfristige anpassbarkeit. flexibel zuordenbare service- und sanitärzonen ermöglichen unterschiedliche raumtypologien und bürogrößen. für die kleinen einheiten ist eine gemeinsame sanitärzelle am kern vorgesehen. durch die robuste gebäudestruktur besteht aber auch die möglichkeit schächte für jede der 50m2 büroflächen anzubieten.
fassaden- und materialkonzept
das für den erweiterungsbau angedachte holzhybridsystem verbindet räumliche vielfalt und wirtschaftlichkeit mit klimagerechtem bauen und umweltverträglichkeit. eine skelettkonstruktion aus brettschichtholz bildet das primäre tragwerk der beiden gebäudeteile. die decken sind als holz-beton verbundsystem konzipiert und eignen sich damit auch für bauteilaktivierung. die gebäudeaussteifung erfolgt durch auskreuzungen und dem erschließungskern aus stahlbeton. der materialmix spiegelt einen kreativen werkstattcharakter wieder. für den boden ist geschliffener estrich angedacht, vorgefertigte holzelemente mit öffnungsflügel bilden die fassade. verzinkte stahlformrohre ergeben die unterkonstruktion für den sonnenschutz und werden zur besonderen dachgeometrie nach oben verlängert und zusammengeführt. die dachbegünung wird auch als ausgleich für die versiegelte garagenfläche vorgesehen.
| fertig | 2021 (wettbewerb) |
| land | AUT |
| ort | dornbirn |
| grösse | 6.000 m2 |
| auftraggeber | campus dornbirn II investment gmbh |
| projektleitung | dominik bertl |
| team | jonathan paljor johannes zotter georgina krauß michael wieser |
| modellbau | modellwerkstatt gerhard stocker |
























