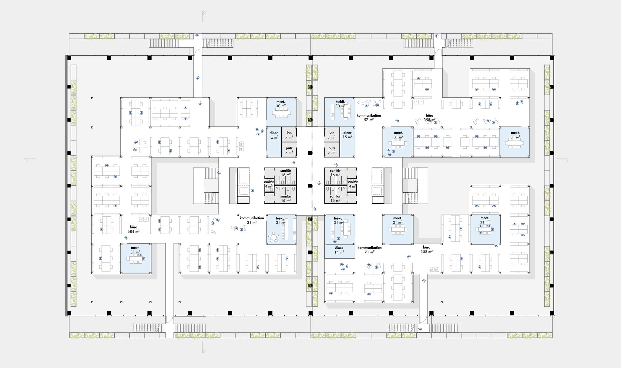
open working environment
a new working environment is created in an existing warehouse - it's a simple idea… after all, why destroy something when it's already suitable for providing spacious working areas?
a multi-level landscape of wood creates varied spatial situations. working here means joie de vivre, exciting lines of sight and open communication. the company's identity permeates the interior and exterior. users are immersed in a green world.
reuse and recycle
demolishing the huge existing reinforced concrete slabs would be an unnecessary waste of resources. we use them as the basis of our new working world. while the existing roof only requires a minor injection of additional insulation material. sheet metal panels from the exterior walls can be reused for the sound-insulating shelves along the highway. and by means of a new fully glazed facade, a light-flooded interior world is created. the storage shelves, in turn, which were once located inside the warehouse, are planted with greenery and serve as a sunshade that becomes more lively with each passing year.
carfree public space
the cars of the users are parked in the large, northern warehouse at low cost. its large air space is illuminated by simple light objects. the entire area is now used for cycling or walking. the design of the open space is cost-conscious and sustainable, because the existing asphalt is generously cut open and shady trees are planted.
phased development
this new campus can grow. the basic concept of converting existing warehouses is planned to be conducted in stages. there is enough space in existing halls for thousands of employees and even a new building can be added. a company kindergarten, additional gastronomic offerings and a fitness center can find their home right in the heart of the site.
| country | AUT |
| state | lower austria |
| size | 13.500 sqm |
| project architect | vadim ghiorghiu |
| team | agata goleśna sarah lützner jonathan paljor ivana susic |
| general planning | werner consult |
| landscape planning | green4cities |
| building physics | ingenieurbüro p.jung |
| hvac | kainer gebäudetechnik |
| sustainability | thomas romm |
| fire protection | fse ruhrhofer & schweitzer |
| structural planning | werkraum ingenieure |
| visualization | expressiv |
| modell | modellwerkstatt gerhard stocker |
















![[Translate to English:] [Translate to English:]](/fileadmin/_processed_/2/8/csm_IKEA-querkraft-o1825-_c_christina_heausler-querkraft_01_615b930045.jpg)
![[Translate to English:] [Translate to English:]](/fileadmin/_processed_/7/d/csm_VE1-01-rendering-aussen-_C_-querkraft_1213406024.jpg)

