residential high rise ensemble with kindergarten
Located in the Clichy-Batignolles urban development area, beside a spacious park, the residential high-rise, workers’ hostel, and childcare facility form an ensemble planned using ecologically efficient criteria.
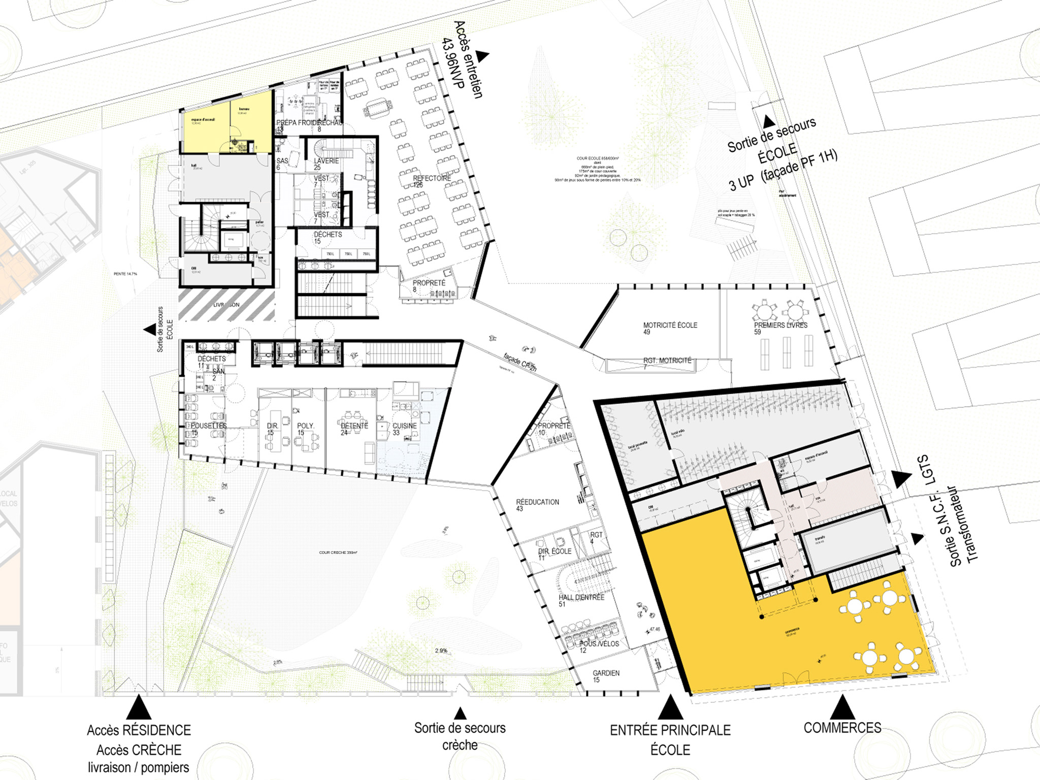
Placed diagonally opposite each other, the two apartment towers are set on the property so that a view of the park and the landscape are guaranteed. The connecting wood-concrete composite pedestal houses a kindergarten and a daycare, Its wings enclose two courtyards that lie lower than the street level.
The different uses of the building components are expressed by a formally differentiated façade that is still connected by materiality and texture. The two towers are united by a shell of dark brickwork, accented by elements of silvery aluminum: the windows of the 50 workers’ flats are protected by sliding sunshades made of aluminum slats that make a lively accent.
The 50-meter high tower houses 77 social housing units with up to five rooms. The aluminum slats of the balcony balustrades are set at different densities and with wavy or jagged top and bottom edges, creating a trompe-l’oeil effect that looks like three-dimensional bulges. French windows allow occupants to exit to the balcony zone from any room, which widen to become deep living areas thanks to the way the building recedes at the corners and in the middle of the long sides. In order to allow residents to enjoy these open spaces more quickly, they were given a furniture set — umbrella, table, flower box, and clothes drying rack — upon moving in.
| architecture | querkraft sam architecture, paris |
| completed | 2019 |
| country | FRA |
| city | paris |
| size | 14.800 m2 |
| client | immobilier 3F |
| project architect | bence horvath |
| team | cornelia schluricke zsuzsanna takacsy james diewald johannes langer |
| local architect | karawitz, paris |
| builiding physics | GEC, paris |
| environment consultant | RFR éléments, paris |
| landscape planning | atelier roberta, paris |
| visualisation | miss 3 |
| awards | german design award 2022 - excellent architecture: architecture |



























