the heart of the adidas company campus
this project is a central building for events, presentations, product shows and meeting rooms. as a center of the building serves a multifunctional room (5.000 sqm, room-height 6m). major customers are the main target group.
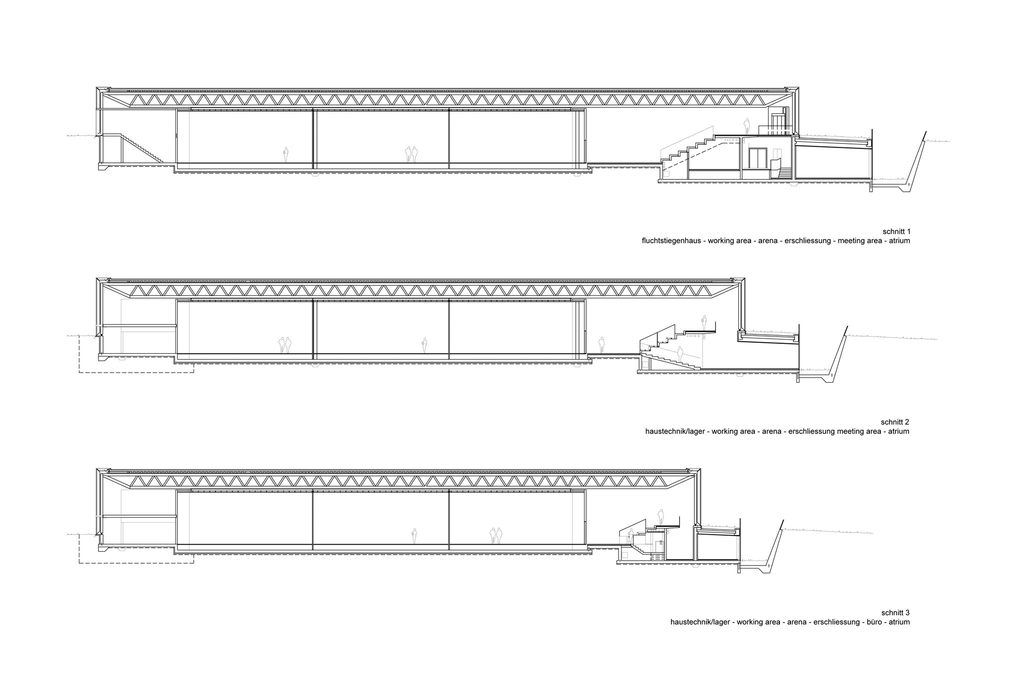
sovereignty instead of fashionable ephemerality: the black, monolithic glass solitaire asserts oneself for decades, regardless of future fashion trends. instead of the required foyer, all rooms are accessed via a sunken arena made up of tiered seats. the 150 meter long wall surface opposite is transformed into a huge cinema format by means of 24 video projectors. sound effects achieve the desired emotional charge.
the people in the building - customers, employees and other guests use the spacious arena to relax and to have informal conversations.
| completed | 2006 |
| country | GER |
| city | herzogenaurach |
| size | 12.158 m2 |
| client | adidas AG |
| project architect | erwin stättner |
| team | dominique dinies bernward krone carmen hottinger sandra denk |
| local site control | haushoch |
| structural engineer | werkraum vienna |
| building physics | prause |
| hvac engineering | duschl |
| landscape planning | adler & olesch |
| photos | gerhard hagen |
































